|
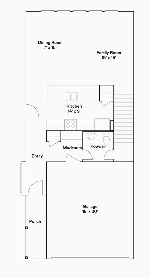
NEW! Lennar Urban Villas Collection "Allen II" Plan with Stone Elevation "CM" in the Beautiful Community of Piccolina! A two-story home with an open first-floor layout that includes a kitchen, dining room and a family room. Upstairs boasts two secondary bedrooms, with one offering flexibility as a work or play space. The owner's suite highlights a private bathroom with a walk-in closet.
| DAYS ON MARKET | 1 | LAST UPDATED | 12/31/2025 |
|---|---|---|---|
| TRACT | Piccolina | YEAR BUILT | 2025 |
| COMMUNITY | 3 | GARAGE SPACES | 2.0 |
| COUNTY | Harris | STATUS | Active |
| PROPERTY TYPE(S) | Condo/Townhouse/Co-Op |
| Elementary School | Young Elementary School (Houston) |
|---|---|
| Jr. High School | Attucks Middle School |
| High School | Worthing High School |
| ADDITIONAL DETAILS | |
| AIR | Electric |
|---|---|
| AIR CONDITIONING | Yes |
| AREA | 3 |
| CONSTRUCTION | Cement Siding, Stone |
| GARAGE | Yes |
| HEAT | Natural Gas |
| HOA DUES | 1000|Annually |
| PARKING | Attached |
| STORIES | 2 |
| STYLE | Traditional |
| SUBDIVISION | Piccolina |
MORTGAGE CALCULATOR
TOTAL MONTHLY PAYMENT
0
P
I
*Estimate only
| SATELLITE VIEW |
| / | |
We respect your online privacy and will never spam you. By submitting this form with your telephone number
you are consenting for Red Door
Realty & Associates to contact you even if your name is on a Federal or State
"Do not call List".
Listed with Lennar Homes Village Builders, LLC
Copyright © 2025, Houston Realtors Information Service, Inc.
The information provided is exclusively for consumers’ personal, non-commercial use, and may not be used for any purpose other than to identify prospective properties consumers may be interested in purchasing. This data is deemed reliable but is not guaranteed accurate by the MLS.
This IDX solution is (c) Diverse Solutions 2025.
