|
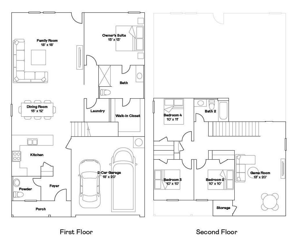
Lennar Watermill Collection! The Sherman "J4". This new two-story home features a luxurious owner's suite on the first level, offering a tranquil retreat with a full bathroom and walk-in closet. A nearby open-concept layout encourages seamless transitions and multitasking between the kitchen, living and dining areas. On the second floor, a versatile game room provides a convenient shared living area near three additional bedrooms. Prices and features may vary and are subject to change. Photos are for illustrative purposes only.
| DAYS ON MARKET | 4 | LAST UPDATED | 3/2/2026 |
|---|---|---|---|
| TRACT | Windrose Green | YEAR BUILT | 2025 |
| COMMUNITY | 5 | GARAGE SPACES | 2.0 |
| COUNTY | Brazoria | STATUS | Active |
| PROPERTY TYPE(S) | Single Family |
| Elementary School | Frontier Elementary School |
|---|---|
| Jr. High School | Angleton Middle School |
| High School | Angleton High School |
| ADDITIONAL DETAILS | |
| AIR | Electric |
|---|---|
| AIR CONDITIONING | Yes |
| AREA | 5 |
| CONSTRUCTION | Brick, Cement Siding |
| GARAGE | Yes |
| HEAT | Natural Gas |
| HOA DUES | 825|Annually |
| LOT DESCRIPTION | Subdivided |
| PARKING | Attached |
| STORIES | 2 |
| STYLE | Traditional |
| SUBDIVISION | Windrose Green |
| WATER | Public |
MORTGAGE CALCULATOR
TOTAL MONTHLY PAYMENT
0
P
I
*Estimate only
| SATELLITE VIEW |
| / | |
We respect your online privacy and will never spam you. By submitting this form with your telephone number
you are consenting for Red Door
Realty & Associates to contact you even if your name is on a Federal or State
"Do not call List".
Listed with Lennar Homes Village Builders, LLC
Copyright © 2026, Houston Realtors Information Service, Inc.
The information provided is exclusively for consumers’ personal, non-commercial use, and may not be used for any purpose other than to identify prospective properties consumers may be interested in purchasing. This data is deemed reliable but is not guaranteed accurate by the MLS.
This IDX solution is (c) Diverse Solutions 2026.
