|
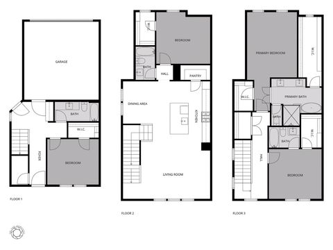
Experience Ojeman Heights by ERA Homes - a RARE 4-bedroom single-family community with garages that can fit a FULL-SIZE TRUCK with a private backyard blending quality, design, and function in one of Spring Branch's most coveted pockets with street and interior parking for guests. The exterior delivers a modern farmhouse aesthetic with a bold yet warm palette that enhances its striking curb appeal. Zoned to the elite SBISD trifecta"”Valley Oaks Elementary, Spring Branch Middle, and Memorial High"”these homes offer the same school access in Spring Valley and Hillshire Village without the million-dollar-plus price tag. Inside, elevated interiors feature an open floor plan, with the 1st floor offering its own access to the backyard and a bedroom perfect for office space or guests. A stunning chef's kitchen with a Thor 6-burner range, quartz waterfall island, and walk-in pantry. 3rd floor Primary with ensuite frameless shower, soaking tub, his/her walk-in closets. Welcome home!
| DAYS ON MARKET | 38 | LAST UPDATED | 2/4/2026 |
|---|---|---|---|
| TRACT | Ojeman Heights | YEAR BUILT | 2025 |
| COMMUNITY | 24 | GARAGE SPACES | 2.0 |
| COUNTY | Harris | STATUS | Active |
| PROPERTY TYPE(S) | Single Family |
| Elementary School | Valley Oaks Elementary School |
|---|---|
| Jr. High School | Spring Branch Middle School (Spring Branch) |
| High School | Memorial High School (Spring Branch) |
| ADDITIONAL DETAILS | |
| AIR | Ceiling Fan(s), Electric |
|---|---|
| AIR CONDITIONING | Yes |
| AMENITIES | Maintenance Grounds |
| APPLIANCES | Convection Oven, Dishwasher, Disposal, ENERGY STAR Qualified Appliances, Gas Range, Microwave, Oven |
| AREA | 24 |
| CONSTRUCTION | Batts Insulation, Blown-In Insulation, Cement Siding, Wood Siding |
| GARAGE | Yes |
| HEAT | Natural Gas |
| HOA DUES | 1300|Annually |
| INTERIOR | Crown Molding, Double Vanity, Entrance Foyer, Kitchen Island, Pantry, Soaking Tub, Walk-In Closet(s), Wired for Sound |
| LOT DESCRIPTION | Back Yard, Subdivided |
| PARKING | Attached |
| SEWER | Public Sewer |
| STORIES | 3 |
| STYLE | Contemporary/Modern, Other, Traditional |
| SUBDIVISION | Ojeman Heights |
| WATER | Public |
MORTGAGE CALCULATOR
TOTAL MONTHLY PAYMENT
0
P
I
*Estimate only
| SATELLITE VIEW |
| / | |
We respect your online privacy and will never spam you. By submitting this form with your telephone number
you are consenting for Red Door
Realty & Associates to contact you even if your name is on a Federal or State
"Do not call List".
Listed with Truss Real Estate, LLC
Copyright © 2026, Houston Realtors Information Service, Inc.
The information provided is exclusively for consumers’ personal, non-commercial use, and may not be used for any purpose other than to identify prospective properties consumers may be interested in purchasing. This data is deemed reliable but is not guaranteed accurate by the MLS.
This IDX solution is (c) Diverse Solutions 2026.
